1,手动状态下,通过另个两个按钮分别控制1#水泵和2#水泵的启动,乖载

相关图片

17,污水泵一备一用手动和自动控制电路(电路图,实物仿真图)

水位数显仪表,电气材料,箱体等组成,具有水泵一用一备控制,故障自投

电气设计排水泵一用一备_word文档在线阅读与下载_无忧文档

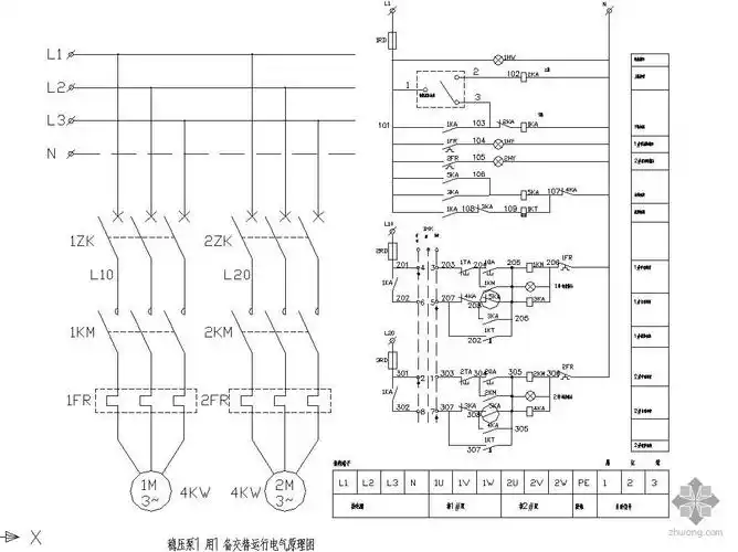
稳压泵(一用一备)控制原理图

热水循环泵一用一备电路图

随机推荐

王宽 萃英中学八年级11班《我爱篮球》华兰瑶 长江路小学三年级8班

赵丽颖可爱的女儿简直太像了,整个一个复制版,粉粉嫩嫩的小脸蛋和甜甜

猫王狗狗

终结的炽天使漫画截图克鲁鲁

黄明昊表情包了

我和我的三个姐姐热播多子女家庭的欢乐与痛苦

雅韵网——历代国画中的《五虎上将》

野王说我的懿宝很像女孩,我:💢