防雷接地

相关图片

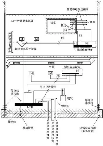
防雷工程防雷接地装置的安装方法详解

防雷接地大样图

建筑防雷接地工程图的识读方法

high qulity yellow green groud terminal block

防雷及接地装置施工图集

随机推荐

有种友谊叫"青梅竹马",杨紫张一山不算啥,看到易烊千玺!

刘雯出席活动同胡兵合影,同时超模的两人这身材简直不要人活了,胡兵的

微胖女生约会穿什么嘞~168cm/150斤(应该)

日系美女深沟白色纯薄丰满美腿火辣妩媚身材

壁纸 日落,湖,树,天空,云彩 2880x1800 hd 高清壁纸, 图片, 照片

壁纸王子异壁纸高清全面屏

健沛优冰黄肤乐软膏说明书

日系小清新简约风景唯美高清桌面壁纸