文字搞笑文字控壁纸

相关图片

动漫,刀刀狗,文字壁纸,困成狗壁纸

文字卡通搞笑文字控壁纸3

辛巴狗搞笑文字语录卡通图片壁纸

漫画,小明,文艺,文字,幽默漫画壁纸图片

文字搞笑你瞅啥文字控壁纸

随机推荐

看行程图同天进集训的两人,吴磊一个月内一半时间请假在外走穴,朱一龙

曾华倩

夏威夷4k高清壁纸可儿海滩岛考艾岛天空海海洋水日落日出岩石太阳云

"文青鼻祖"五十年沉浮,成为一代老戏骨,用真心演绎不凡人生

对线职业选手如何运用兵线细节滚起雪球

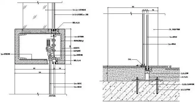
感应门节点详图_cad图纸下载-土木在线

两只老虎简谱两只老虎c调吉他谱简单版

渔人码头奉贤海湾