需要做钢结构玻璃雨棚的师傅,有空的可以联系我 - 抖音

相关图片

钢构拉杆式玻璃雨棚立体构造侧剖效果图图片

不锈钢拉杆钢化玻璃雨棚做法cad详图

恒中天 玻璃雨棚 门头遮阳棚 铝合金不锈钢架构 上门安装 工厂直营

玻璃抓玻璃雨棚施工安装现场

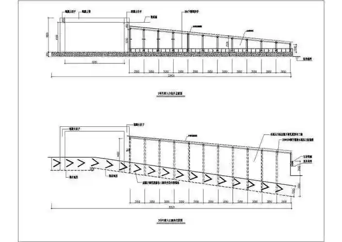
某地商场地下车库入口轻钢玻璃雨棚设计详图

随机推荐

腾讯注册狗头表情包商标成功涉及科学仪器健身器材等

原创鞠婧祎3岁到18岁再到25岁的照片被曝颜值对比是否整容一清二楚

火影忍者精选动漫桌面壁纸

【微信头像】蔡徐坤

那英 愿赌服输 出卖 全新正版磁带 hi res无损音质 演唱会现场

《中国式离婚》《正青春》等热播剧中有出色的表现,也在《乘风破浪的

张也写真图片-自制1280x960壁纸.高清大图-明星写真馆n63.com

4/4cla-9普级大提琴专业手工制作 可用于初学,考试,教学,专业演奏4/4