仁恒经典户型一梯一户大平层上福外建平送车权车位

相关图片

3居97东四环沿线丨层高达3米97豆腐块户型丨面宽达15米97218平

雅居乐物业一梯一户大平层精装交付新北飞龙雅居乐璟尚雅宸

急售急售改善户型一梯一户大平层精装可拎包入住满五

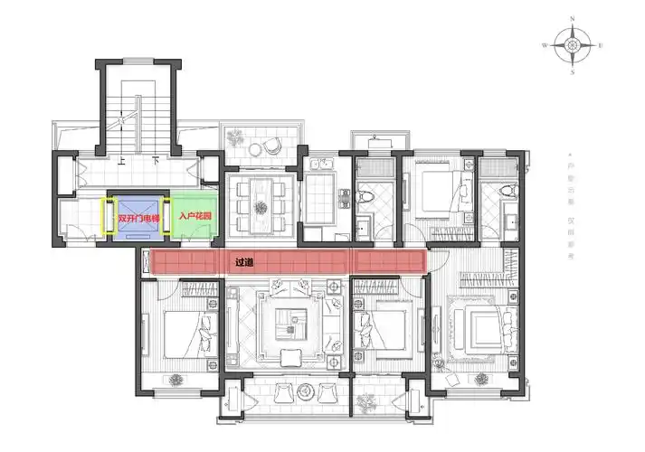
177㎡大平层,一梯一户的设计,档次立马提升

龙湖,绿城的大平层豪宅,一层一户,够震撼!|户型|别墅|奢阔_网易订阅

随机推荐

曹全碑高清大图该碑是汉代隶书代表作品,在汉隶中独树一帜,是保存汉代

治愈的笑容,侧脸的帅气,晚安了@肖战 #肖战 #肖战的小飞 - 抖音

可爱小女孩照片头像,图片头像小女孩可爱-图片大观-奇异网

女星杨千嬅出席活动美照,手拿酒杯和黎明合照"笑开怀"

小李子身材上热搜:颜值再高也干不过二斤肥膘

《流金岁月》陈道明倪妮上演"老少配"太好磕!结局却让人心酸!

蒋敦豪_中国好声音_真人秀_综艺秀

辣妈伊能静时尚写真