某地区小型别墅建筑设计方案全套图纸

相关图片

占地15x13二层自建别墅设计全套施工图

本次园林效果图作品是关于园林施工图纸设计,主题是家装平面布置图

占地18x13三层自建别墅设计全套施工图 - 乡村住宅在线

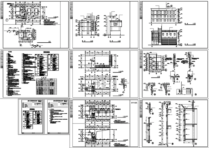
世代锦江国际酒店贵宾楼设计施工图(附效果图)

分享| 北美风情小别墅设计cad建筑施工图_石材

随机推荐

亲爱的热爱的韩商言佟年高清壁纸

张碧晨和王赫野在「天赐的声音」演绎《字字句句》,《字字句句》就

78【动态皮卡丘】萌图,可爱,动漫,动态,… - 堆糖,美图壁纸兴趣社区

2021上半年最流行的8种超美发色,好看的小姐姐们都染上了!_颜色

回复:【怀旧】我看过的古装电视剧之美人篇_衣香吧_百度贴吧

手机壁纸,#dota2 #杭州亚运会 #ai绘画 # - 抖音

硬糖少女303-刘些宁 做不被定义的女孩

青山修得古城隅,万里归来卜易居.芜湖 - 抖音