现代五层以上别墅设计图平面图

相关图片

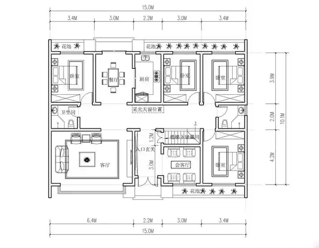
简约楼房平面图设计

四室两厅两卫房子设计平面图

农村房屋设计平面图cad图docx13页

各位大神,本人对设计的事比较愚钝,现手上只有房屋的平面图,求大神们

有什么网站或者软件可以帮你设计房屋的平面图.例子如下

随机推荐

自己做的tfboys背景图

中国服装史文化分享宋朝女子发型

翻看以前的照片很多回憶,希望跟我一起成長的你們都成為了更好的自己!

电脑平板电视机1680x1050丰田2021款_toyota_gr_supra六缸跑车壁纸

这一组是组合时代少年团的照片,有个人照和集体照,还有《花儿与少年》

撒野

可爱漂亮动漫双人好闺蜜头像图片

每个庭院都应该有一个这样的水池_手机搜狐网