2/米衣柜

相关图片

1.卧室衣柜常用尺寸布局,衣柜长度为4 - 抖音

厂家直销三门上下滑移门衣柜简约现代整体衣柜 移门大衣柜衣橱特

合肥房子装修衣柜是定制还是现场打,这份衣柜参考尺寸用的到

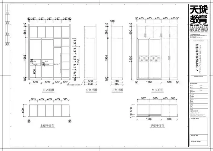
衣柜尺寸

绘制下单图---推拉门衣柜

随机推荐

蔡徐坤头像蓝色背景

彭于晏「死亡视角」零偶像包袱自拍:满脸皱纹 肥肉,型男变大叔_照片

侵删#动漫女头#软萌#搞怪#傲娇#高冷#女王#手绘头像(61 w 61)

多功能电煎锅电火锅家用电热锅电煮锅宿舍烤炒菜煎锅不粘锅批发

也是今年夏季比较火的一款男生短发,同时也是下半年新时尚男发之一

杨超越祥云##七时吉祥##谁谈个恋爱天天亲啊

三九999 皮炎平糠酸莫米松凝胶10g 湿疹皮炎 神经性皮炎 瘙痒症化学药

女藏蓝色纯色上衣搭半身裙套装