王俊凯穿睡衣也太好看了吧!

相关图片

tf演唱会睡衣造型,王源的贵公子,千玺大佬,王俊凯不愧是队长

170813#tfboys四周年alivefour演唱会# 第二场 睡衣趴

王俊凯戴眼镜穿格子睡衣亮相19岁生日会,在舞台上深情唱歌太帅了

易烊千玺睡衣装撩人,六周年演唱会造型合集你pick哪一套呢?

王源六周年睡衣par

随机推荐

肖战一眼就惊艳的照片——肖战惊艳美图100张无水印横图

早餐# 读书郎早餐一碗热气腾腾的胡萝卜芹菜肉馅饺子

525_296gif 动态图 动图

精致地打扮自己,为什么成了一种羞耻?_腾讯新闻

包饺子大全!你会包几种?

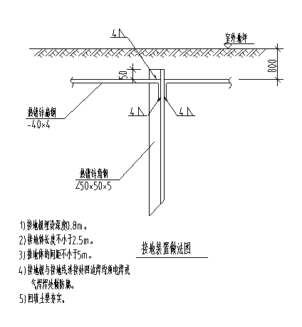
接地装置做法图

一分钟恋人

喻言