关于楼梯的设计与计算方法

相关图片

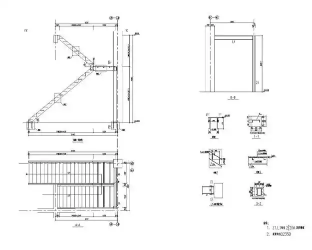
[分享]楼梯构造详图cad资料免费下载

99设计师都需要的楼梯cad节点详图合集

多种钢结构楼梯施工图 (cad)

99设计师都需要的楼梯cad节点详图合集

120套楼梯详细cad施工图cad施工图集cad节点详图cad施工图纸

随机推荐

港影:最后的巨星,谢霆锋加入战团,五大巨头再战江湖_郭富城_电影_表演

肖战迪丽热巴合照曝光,网友惊呼:这是什么神仙颜值!

不愧是女神63岁林青霞近况满脸皱纹可以老的很优雅

动画魔卡少女樱有没有什么好看的全面屏壁纸

【图】张艺兴整容前照片太吓人 竟撞脸杜海涛

奶昔草莓手绘夏日显白可爱美甲

家庭照片集锦

卡通形象logo集合