200平米左右的大平层哪个好

相关图片

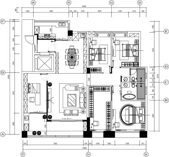
户型图:f户型200平米

200平四居室户型图

200平米的户型能做出什么样的感觉

200平米观景大平层户型,采用三连大横厅,格局优化极其舒适

松山湖虹溪诺雅200平方现代风格4室2厅装修效果图

随机推荐

合适脖子短女生的短发这些发型太好看

《爸爸6》杨烁对儿子太凶?

葬花吟简谱(歌词)-童丽演唱-岭南印象曲谱1

多边形艺术高清海报图片桌面壁纸-设计创意-壁纸下载-美桌网

创意世界母亲地球日手绘矢量素材

吹梦到西洲-抖音唯美古风歌曲双手简谱预览1

自助餐厅手绘效果图.jpg

宋昕冉这神态与颜值堪称纯欲天花板,比那些网红还诱人,太迷人了!