30种鞋柜格局尺寸图,收藏备用,装修不再难倒你_网易订阅

相关图片

春邦超薄翻斗式鞋柜家用门口外新款2022简约现代小户型收纳玄关柜田园

鞋柜尺寸

砚玺意式轻奢鞋柜家用门口小窄柜17cm24cm翻斗式大容量储物玄关柜浅

古宜家居g605超薄鞋柜现代简约鞋柜玄关门厅鞋柜多功能简易翻斗钢琴

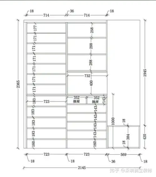
深圳装修房子玄关鞋柜设计方案附鞋柜空间布局尺寸

随机推荐

2k丰田2021款_toyota_gr_supra六缸跑车超高清壁纸

流星雨十年张翰解锁新饭碗 留胡子梳露额短发的翰boss斯文又成熟

描述: 可爱的哈巴狗-狗摄影壁纸 当前壁纸尺寸: 1152 x 864

iphone13素颜or化妆前置自拍

汪东城这时尚感绝了!脚上的鞋不仅有"味道",还丑出了新高度

中分八字纹理烫,这一日系发型将传统中分打造出让人心动的美男子中分.

女生蘑菇头短发发型图片 发质硬可以留蘑菇头吗(3)

疯狂动物城 树懒 闪电 反射弧 神秘微笑 慢动作