昆凌 高跟凉鞋 美jio [爱你][爱你] #昆凌

相关图片

昆凌的八字(昆凌的八字命理)

果不其然,她脚上的这种一字带凉鞋,即使没站在c位,也丝毫不输给旁边的

昆凌下身穿搭白色百褶裙,脚踩白色高跟凉鞋,优雅时尚.

昆凌

美女明星一字高跟凉鞋性感又好看

随机推荐

刘德华年轻时的照片真是帅得没的说!

郁可唯《浪姐》造型太有少年感,被指撞脸鹿晗?美腿更是艳压全场

东港海鲜-名片,logo设计-518外包网

哪个演员是自己的原音?

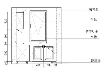
l型厨房b立面图

气锤气动敲击振动空气锤气动敲击锤冲击锤振动器破拱器zhzcahsk406080

walmartspookystreet万圣节

纯牛奶广告牛奶宣传海报设计广告设计模板psd素材源文件下载本素材,需