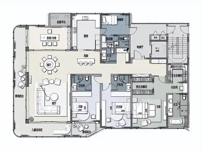
5房2厅格局的大平层,坐北朝南,独梯独户,属于比较高档的户型

相关图片

户型图个人觉得300多平米的超大平层,有那么1-2个暗卫还是可以理解的

300㎡奢华大平层,内部空间实用,南向有四开间卧室,奢华

300平米的豪横三房大平层户型

你会喜欢这种300平米带转角阳台的大平层户型么?

300平米的大平层户型有3个入户门奢华的象征

随机推荐

肖战 花海 小飞侠

林俊杰 jj陆 巡回演唱会 黑白

冬至饮食养生离不开羊肉水饺!

12张动画电影《功夫熊猫2》卡通涂色图片下载-红豆饭小学生简笔画大全

穿过午门,太和门等重重门禁是3万㎡的超大中心"庭院" 太和殿广场

中国梦#建筑手绘 #故宫 #马克笔 - 抖音

微信头像刘雨昕

原创很多人喜欢狗狗这几种可爱的狗狗看看有没有你喜欢的