底层楼梯平面图 :50

相关图片

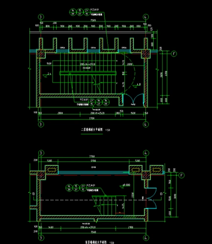
219 认真阅读楼梯二层平面图,可知楼梯井的宽度为()

二层楼楼梯平面图

【一问一答】第八期 为何楼梯1楼到2楼的第二阶段台阶数比其他阶段

11g101-2楼梯

首层的楼梯显示的是单跑二层是双跑但是这样绘制的上下楼就不连接的啊

随机推荐

还得是大幂幂啊.杨幂,1986年9月12日出生于北京市,中国 - 抖音

王菲,一个不食人间烟火的存在,却曾是把时尚穿搭玩得最溜的人_衣服

肖战q版

古风文字

凡凡- 堆糖,美图壁纸兴趣社区

让美妆改变你,大眼妹教程

粒子蓝叶7kled全息投影素材

开学季手牵着手上学的兄妹牵手妹妹