2022跨年文字壁纸朋友圈配图有

相关图片

文字壁纸朋友圈文案便利贴ins手写体

文字背景图#朋友圈配图

文字句子背景图朋友圈背景励志

文字便利贴/手写壁纸 cr:@渔十二 朋友圈背景图/正能量励志文案 文字

背景头像纯字纯景文字朋友圈pyq背景图静景安静温柔唯美

随机推荐

罗森饭团热量

早春基础简约穿搭 |ootd.姐妹们,这套早春洋气时尚假两件 - 抖音

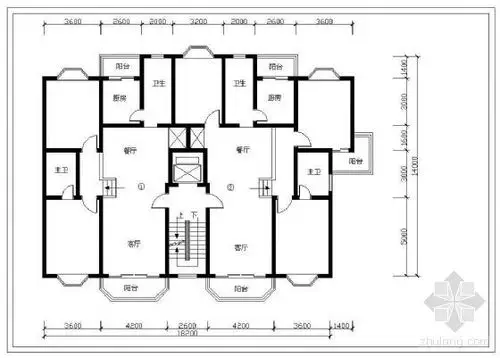
多层住宅户型平面-建筑户型图-筑龙建筑设计论坛

古力娜扎惊艳透视裙,诱惑身材炸裂!_魅力_珠宝_曲线

热血枪手:荣逍遥设计马亮成,原因竟是认其亲哥,身世曝光

柠檬宝宝lemonkid 夏季女童小碎花吊带连体泳裙 儿童泳衣 速干透气

恶魔的主页 - 抖音

【图】中国好声音梁博女友被曝家世显赫 大眼长发不怕脏累