长沙朝阳一村怎么样朝阳一村地址配套及房价分析

相关图片

现代简约一室一厅小蜗居

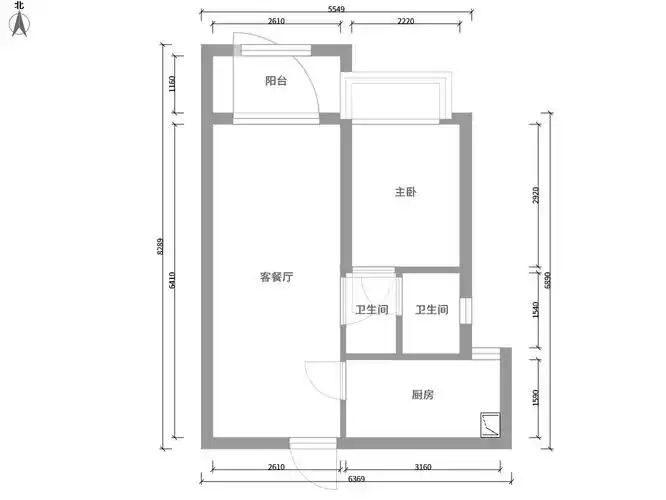
一居室原始平面图效果图大全

一居室户型图

一居室户型平面图

婚房装修,超绝美一居室,南向,位于双井,劲松地.

随机推荐

tfboys-王源/爱豆头像/男星

5岁丧母父亲离家出走,被传同性恋,出道13年他仍是赤诚少年_马天宇

4月23日,2021"城市之星"国剧颁奖礼在江苏南京圆满落幕,演员陶红盛装

一位离异父亲给女儿的忠告做个坏女人才能抓住男人的心

甩发拍照新技能get!应采儿发丝飞扬女人味十足

职业裙黑色包裙包臀工装半身裙西装高腰一步裙女西裙正装工作短裙

花篮幼儿园水果拼图茶话会

山海经中的神兽(山海经中的神兽白泽) - 泉兴百科