2-12 楼梯栏杆立面图

相关图片

供应荆州锌钢楼梯扶手直销 楼梯栏杆定做 湖北护栏厂家

钢结构楼梯立面图

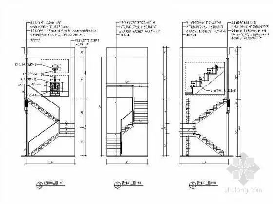
楼梯立面图

一套售楼处 cad 实景案例_楼梯立面图.jpg

楼梯间立面图

随机推荐

大脸女生适合日系中短发烫发发型

220v交流接触器接线方法与实物接线图

侧颜之魅 欧美明星侧脸美照赏

邓超电影之夜高调撒糖,分享婚姻幸福秘诀:找一个叫孙俪的女人_腾讯

一组清末珍贵老照片图1满族农妇长得像马云图9清朝最美格格

科学家近日发现宇宙中最大黑洞,曾被误认为仙女座中的天体

80亿富豪李宁:我要在8年后超过耐克(2)

一起学画画 传承中华文化97七彩百灵美术课堂《百鸟朝凤》, - 抖音