我们采访到了一位5000多岁的神秘嘉宾_良渚文化_玉琮王_玉器

相关图片

前几篇文章我们讲了红山文化玉器,从今天开始将进入良渚文化,它也是

五千年前旧冠冕:良渚文化中独特的三叉形玉器

230万 ,850万,3100万——良渚文化玉器越来越吃香 !

全民博物馆每日文物良渚玉器琮王

1217良渚文化古玉兽面纹琮形管

随机推荐

不愧是天仙刘亦菲2004年高清古装照曝光莞尔一笑十分动人

动漫男生头像【搬自麦萌ヘ(_ _ヘ) 帅气 高冷 梦幻 迷人 男头 高清 二

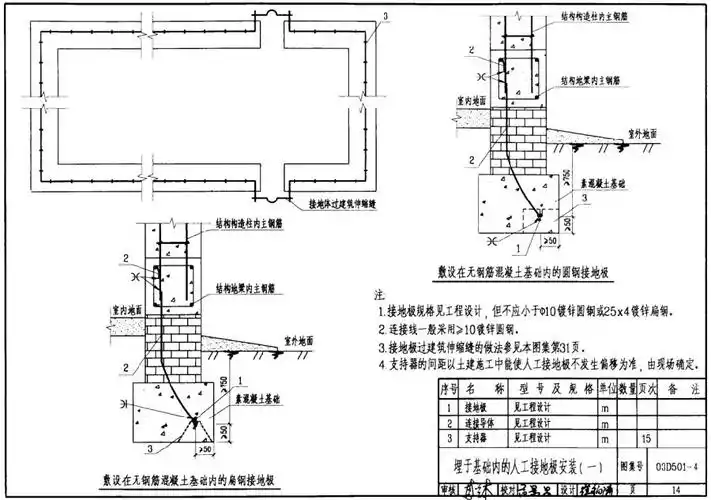
03d501-4接地装置安装图集 pdf高清电子版

吴谨言央视古风造型#吴谨言这个好像有点美颜过度.

儿童健康守护者计划##国医的精诚力量##支原体肺炎

素材全身

爆龙战车4战龙合体新奇男孩暴龙车神站车爆裂变形恐龙飞车变形机器人

seven团头像仅seve团成员使用