三层9班幼儿园建筑剖面图

相关图片

建筑剖面图建筑轴立面图天沟大样图柱配筋图

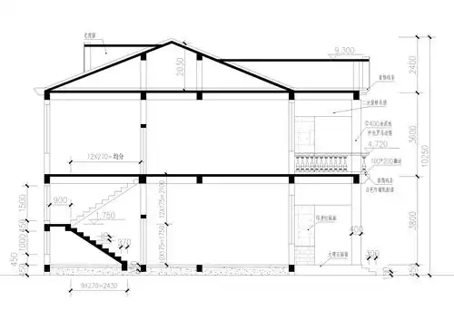
建筑剖面图

剖面图.jpg

向周边建筑致敬——ogle/coal住宅

建筑识图

随机推荐

刘亦菲背景头像

袁冰妍吊带裙性感海边写真图片34

安家:房似锦被骂老土,穿短裙狠甩张乘乘8条街,她气炸了

明星壁纸#流光溢彩|婉约动人|女艺人壁纸唐嫣|刘亦菲|吴谨言

陈慧娴

寡姐斯嘉丽约翰逊与第3任丈夫低调完婚!杜兰特:爷青结?

身穿小西装的商务女士职场人士手绘插画3602792矢量图片免抠素材

最新加入的商品