红蜻蜓(混声合唱)简谱-曲谱 - 酷好简谱

相关图片

少儿合唱队练声曲选粹

练声曲-4

菊花台(混声合唱)简谱 - 曲谱歌词网

练声曲 2

同桌的你(黑鸭子组合演唱 女生合唱)简谱-合唱曲谱-爱曲谱网

随机推荐

新一波女友视角#肖战 #真的超爱这个少年 #热爱可抵岁月漫长 - 抖音

共10s " 重播 播放 下个视频:当剑心拿到自己的刀时 #浪客剑心 #拔刀

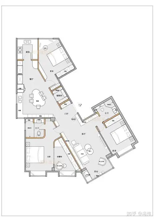
居住改造家第四十三季:112平异形不规则户型如何化零为整,逆袭改造

乌兰图雅97北京演唱会开唱流行乐融合民族风

taylorswift高清电脑壁纸

【第五人格|诺顿·坎贝尔】剪辑 超度我

美白注意这8个技巧可以让你白得更快

fila时尚运动代言人高圆圆##fila 摩登周末