故宫博物院参观指南2九张详图带你玩转故宫博物院

相关图片

北京故宫博物院

2020年9月10日,"丹宸永固——紫禁城建成六百年"展在故宫博物院午门

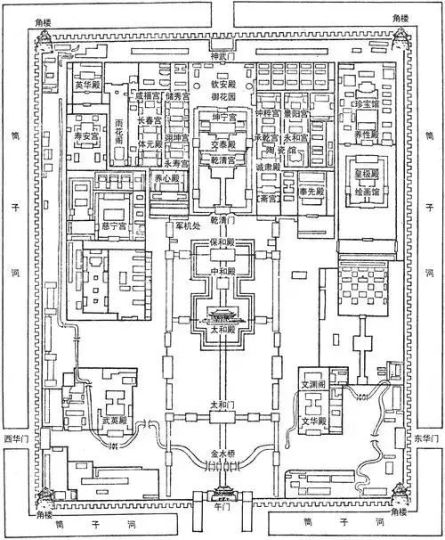
故宫平面图,红圈处为东华门  来源:故宫博物院官网

故宫平面图|用大白话阐述故宫户型 故宫分为前朝和后宫 78 前朝就是

故宫平面图

随机推荐

tnt时代少年刘耀文

青春期的她,身材发胖,面容宽扁,与人们心中对童星的甜美形象相去甚远.

晒晒赵丽颖的豪宅,独栋别墅还带小溪,太令人羡慕了

每天吼吼吼,孩子还是不动?掌握孩子的"行动开关",变温和父母

野性是马伯骞最好的医美##马伯骞到新疆野性基因觉醒了

《斗罗大陆》盘点唐三露腹肌名场面,小舞都看害羞啦!

乐凡爆料录音视频,祁隆自标身价30万,冷漠高安龙梅子只有8万

有哪些撩男友的表情包? - 知乎