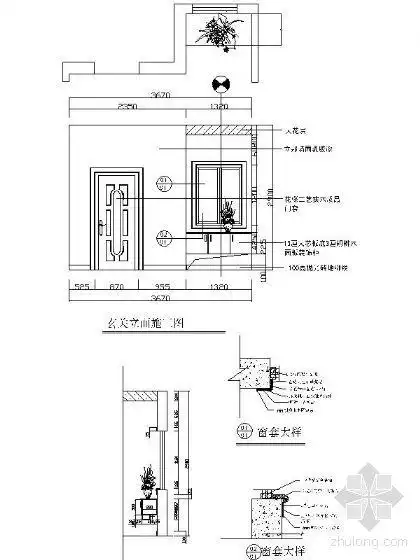
玄关立面图

相关图片

图一本图纸为:某地各式玄关立面详图下载cad图纸,内容包括:玄关立面图

玄关立面图

本图纸为:某地各式玄关立面详图下载cad图纸,内容包括:玄关立面图

玄关b立面图

[图块/节点]玄关立面详图

随机推荐

左旗月亮湖

国外60年代的杂志封面文字排版 | 设计无忧网

苗苗挺孕肚陪郑恺打篮球,两人挽着手十分甜蜜!

张馨予作为唯一的女演员,刚开始并没有受到严厉教官何捷的喜欢.

《大鱼》完美演奏版钢琴简谱-数字双手-周深1

微信头像权志龙

山河令顾湘同人合集

赵露思个人资料,赵露思个人资料介绍 - 0319娱乐网