96d702-2(常用灯具安装图集).pdf

相关图片

03d702-303d702-3图集03d702-3下载03d702-303d702-3特殊灯具安装

图纸 电气图纸 96d702-2常用灯具安装图 国标图集 相关专题:灯具

96d7022常用灯具安装

96sd469常用灯具安装图集

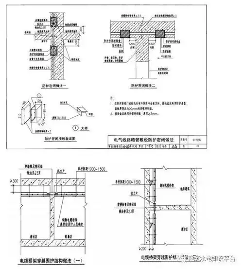
技术交底人防电气

随机推荐

迪丽热巴造型 mixwei

猫咪戴眼镜头像

眼镜娘第二弹!我爆了(79 69 70 69.#二次元 #美女 # - 抖音

彩铅手绘彭于晏~by@miss公主

章子怡优雅写真图片桌面壁纸,大陆明星,性感,高清,女神,章子怡,优雅

观想佛光除病法

无缝的沥青纹理平铺模式在反对美丽 d 沥青公路上行驶的车辆的照明

l1/三室两厅两卫/125㎡