输水隧洞钢筋图纸设计

相关图片

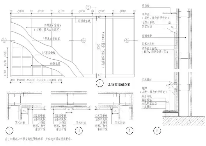
设计院标准图集 -壁纸,砖墙,木壁墙节点-木饰面护壁墙裙构造做法

09j801:民用建筑工程建筑施工图设计深度图样

11)-幕墙结构施工图-筑龙结构设计论坛

正版现货 室内装饰施工图设计规范与深化逻辑 王冲 李坤鹏 主编 中国

接上一个#cad施工图深化设计 #施工图 #施工图深化 #室内设计

随机推荐

2021图片微信头像女

新品上市mlily梦百合智能电动床系列让床来适应你

微信头像丨女生头像可爱闺蜜头像四人闺蜜头像

白百合一指禅是什么 名声臭掉也不惧现无名指戴戒指引猜测

创意卡通插画风背景个人简历ppt模板

女模特 身高165 体重95斤穿m码 男模特 身高178 体重140 穿l码s m l

长夜漫漫 今夜无眠(熊猫头)_无眠_长夜漫漫_熊猫_今夜表情

2020最新最流行发型24款修颜时尚有气质你最喜欢哪一款