潮鸣(chaoming)斯亚特连体温室大棚配件 连栋大棚水槽天沟 水沟雨水槽

相关图片

连体棚水槽加装防水垫防止大棚漏水连体棚温室大棚安装设计种植棚

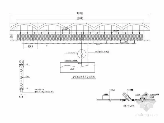
[图块/节点]导水槽做法详图1

连体温室大棚配件 连栋大棚水槽天沟 水沟雨水槽g 镀锌板中边水槽

立泰温室生产大棚连栋天沟水槽量大优惠保证质量

玻璃钢天沟厂家玻璃钢天沟水槽价格导水槽水沟

随机推荐

《神雕侠侣》龙过cp23年后第二次相逢,李若彤晒合照,容颜依旧

十二星座q版动漫少女系列

水彩街舞海报培训 舞蹈 跳舞 街舞海报, 冬季, 寒假, 秋季 背景图片

喜欢小狼尾

女星谁穿高跟鞋气场最强?张钧甯炸裂,迪巴兼备,张天爱霸气

12年后《家有儿女》为何再重聚? 独家探秘百事"17把乐带回家"幕后故事

小鬼王琳凯 扑朔迷离 - 堆糖,美图壁纸兴趣社区