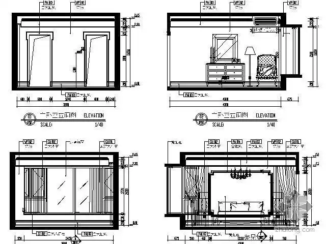
分享现代卧室立面图资料下载

相关图片

分享现代卧室立面图资料下载

分享主卧室立面图资料下载

实木雕花卧室立面图

分享主卧室立面图资料下载

[分享]主卧立面图资料下载

随机推荐

凭着高颜值和天使笑容走红的毛绒绒柯基连环歪头杀简直要萌死人啦

老司机污污撩妹表情包160张有图在手撩妹无忧

《中年好声音》第二季公布100强名单,向华强四哥向华荣的儿子向展鹏

王一博的抖肩舞突然出圈了,猫狗抖肩都不够用了,机器人都在跳_街舞

森系头像98 仙气飘飘的女生头像 来一组森系女生头像,仙气飘飘,唯美

远射手电电警棍充电筒电器防狼居家防护多功能手电便携手持电棍电警棍

《我就是演员》助阵影视化作品 李兰迪《女儿》揪心诠释内心伤痛

以上六种卷发是最适合齐肩的发型.