有宅乡墅混凝土楼梯有哪几类楼梯的细部构造有哪些

相关图片

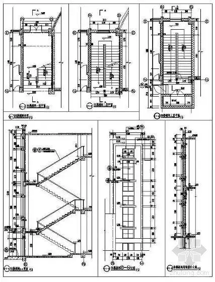
[分享]楼梯构造详图cad资料免费下载

cad楼梯大样

楼梯的各种尺寸要求及公式汇总

99的石材人都需要的楼梯cad节点图合集

室外庭院楼梯详图设计(cad)

随机推荐

教育文学网狼的简笔画狼的简笔画凶残霸气狼的简笔画大全及画法步骤

求婚告白生日成人礼酒店布置派对气球节日布置年会商务酒会布置套餐

伤感绝望头像男失望的图片一个人抱头心碎绝望的伤感图片伤心的图片带

舞台近照太真实,王俊凯黄牙恶心,王源脸比乒乓球大_表演_镜头_明星

就问谁不喜欢徐璐饰演的谷峤这么古灵精怪的女孩,这个社死场面也太绝

二次元##龙##机甲##动漫##壁纸##动漫壁纸##炫酷##炫酷机甲

突然好想你 你会在哪里 过得快乐或委屈 突然好想你 突然锋利的回忆

韩国女爱豆头像 miss a 孟佳jia