厂家设计定做热镀锌太阳能风光互补路灯杆6米~13米加工led

相关图片

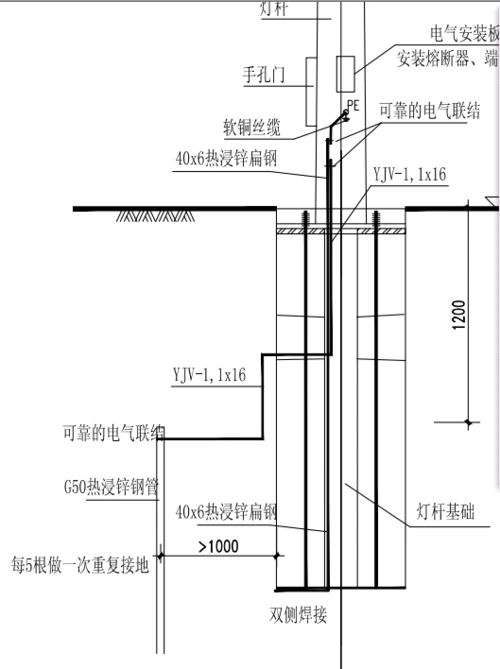
接地极做法示意图-model.pdf 1页

请问像这种路灯基础的接地极每一根都得算一次接地极试验吗?

室外路灯的接地相关问题请教?

视频监控的防雷保护可分为室外设备保护,机房防雷保护和接地系统三块

路灯杆接地406镀锌扁钢怎么计算

随机推荐

迪丽热巴头像

潮流壁纸精选20201208

颜值顶峰时期的郭富城(看了年轻时候的郭富城)(20)

星盘_星盘_占星_星盘占星_星座命理_星座命理其他

国增a503三联单栏收款收据48k今收到无碳复写票据单收款凭证单批

赘婿 苏檀儿 宋轶

管螺纹尺寸对照表

《特殊使命》剧照随后,她接连成为《中天悬剑》里的洪缨,《秘杀名单》