什么是热水回水系统?是否有必要安装呢?_wefatherm_德国微法管

相关图片

别墅如何设计热水系统太阳能和燃气热水器配合使用即开即有热

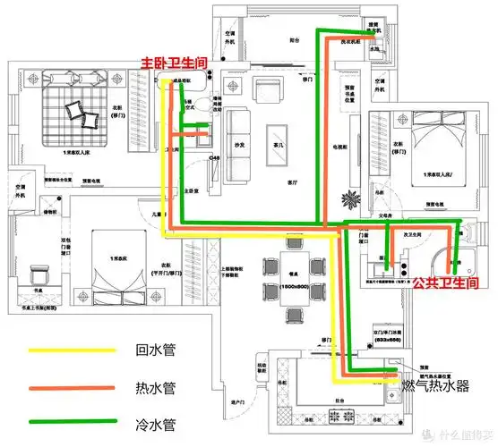
一张图带你了解小循环水管走线中间的是回水管热水器外观这款燃气热水

广东圣普诺新能源科技有限公司|太空能热水器商,空气能热水器|太阳能

热水的回水系统是什么东西有没有必要安装呢

装修小贴士热水循环管路怎么做才能舒适又节能

随机推荐

张艺兴国李斯丹妮刘雨昕同款限定满钻双爱心机械项链

清爽梦幻蓝色系壁纸

魔道祖师画师斐狸 - 堆糖,美图壁纸兴趣社区

念佛的话语

郁辞笙 古风诗句 古风壁纸 唯美文字 侵删

校园插画jpg背景图素材学校操场教室教学楼开学毕业季海报背景psd

图尤浩然家有儿女中饰演夏雨小雨被称长残了

milwaukeem12m18锂电池米沃奇12v电动工具电池充电电动四驱车零配件