妥布霉素滴眼液--药品|价格|滴眼液|药品说明书|包装|处方药|生产厂家

相关图片

妥布霉素滴眼液:结膜炎,角膜炎 - 抖音

妥布霉素滴眼液说明1.jpg

托百士 妥布霉素滴眼液 0.3%*5ml/支5866

仁和 妥布霉素滴眼液 5ml:15mg【价格 说明书 作用 效果 多少钱】_1药

信谊妥布霉素地塞米松滴眼液价格_说明书_功效与作用_用法用量_副作用

随机推荐

总监制:王源|创意导演:王源绿海好美好震撼9898!

影视表情_我不听_抓狂_表情图库_速排小蚂蚁编辑器

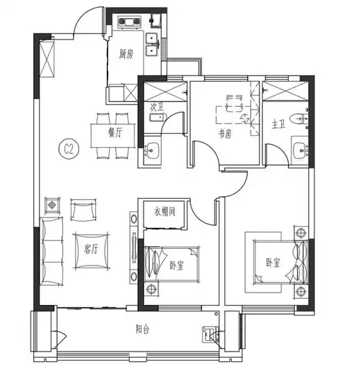
c2户型三房两厅两卫-3室2厅2卫-112.3㎡

每个人的心中都有自己的皮卡丘 #皮卡丘 #图文伙伴计划 #愿 - 抖音

2018超萌又可爱的小男孩子头像高清 天真爱搞怪的小孩子

二次元女生头像来啦94动漫风满满

温碧霞出名性感没想到穿私服的她竟然这样清新甜美

滨江尚海湾680平大平层室内泳池江景