大雄的家结构图

sketchup还原大雄&哆啦a梦的家

图片尺寸1280x724

2ch野比大雄家是真实存在的

图片尺寸900x1200

哆啦a梦生日,你参观大雄家复式二层楼没?

图片尺寸669x621

活动预告为什么投资移民日本选一户建猜猜看小丸子大雄他们家值多少钱

图片尺寸597x424

多啦a梦:大雄的家到底多有钱?千万不要少看这个隐形土豪

图片尺寸640x398

大雄的家|动漫|动画片|z31585780 - 原创作品 - 站酷 (zcool)

图片尺寸580x328

【兔酱还原】动画片《哆啦a梦》中【新】大雄家的房屋还原-已于5月15

图片尺寸1200x675

设计的开始是伸手碰触另一个世界的边缘

图片尺寸800x600

11整栋完美还原野比大雄的家连哆啦a梦的壁橱都有

图片尺寸641x568

5个人气动漫主角的家里平面图大公开大雄一家根本是有钱人

图片尺寸793x430

5个人气动漫主角的家里平面图大公开大雄一家根本是有钱人

图片尺寸793x385

sketchup还原大雄&哆啦a梦的家

图片尺寸1280x724

哆啦a梦生日,你参观大雄家复式二层楼没?

图片尺寸669x499

野比大雄的家!画一个日式房间需要注意什么?

图片尺寸641x734

东京都练马区月见台 家庭成员:野比大助/野比玉子/野比大雄/哆啦

图片尺寸828x1216

日本动漫人物房子大比拼,大雄家原来是有钱人?

图片尺寸588x452

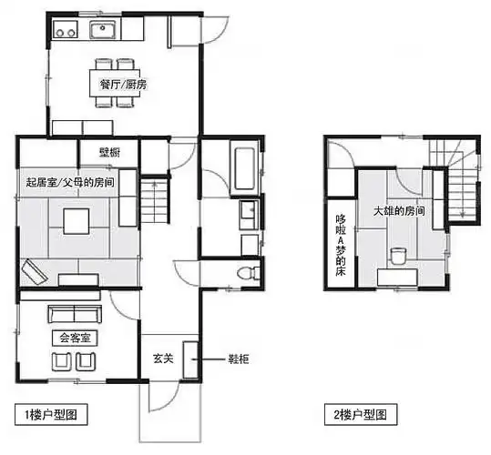
哆啦a梦,大雄的家的户型图

图片尺寸1371x1041

从大雄家看看日本有哪些可以借鉴的家居行为

图片尺寸720x553

《哆啦a梦》野比大雄到底有多豪?房价1亿3千万,总资产近2亿

图片尺寸640x540

《哆啦 a 梦》里的大雄家在当年的日本算什么收入水平?

图片尺寸640x640