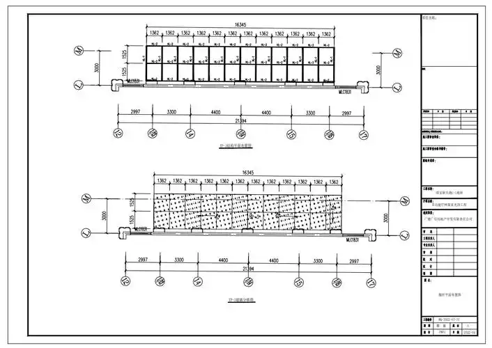
某大门雨棚设计cad施工详图

相关图片

草图大师铝合金雨棚车棚设计教学出图#草图大师 #铝合金雨棚 - 抖音

某大厦斜拉钢结构雨棚施工图cad-幕墙结构节点详图-筑龙结构设计论坛

某地主入口雨棚设计cad大样图纸

辽宁省沈阳市某酒店雨棚钢结构设计

海口市云龙镇阳台露台透明顶遮阳雨棚设计效果图_海南悦民

随机推荐

电影《喜剧之王》:幽默的力量和个人成长_周星驰_元素_阿星

赵丽颖冯绍峰离婚后又有一瓜或将出现杨紫和张艺兴有情况了

明明是临时被拉来救场却演成经典的4位演员多谢原定不演之恩

牛奶一天最多可以喝多少

钢琴简易谱《夏天的风》《凉凉》《青花瓷》《你笑起来真好看》

《碧海蓝天》资料—美国—电影—优酷网,视频高清在线观看—又名

21:26:45genzoman 插画作品欣赏 #采集大赛#龙女,美人鱼,蛇女空有狷狂

墨离殇羊仔暗夜偷吻