[资料]高档客厅 家居装修设计立面图

相关图片

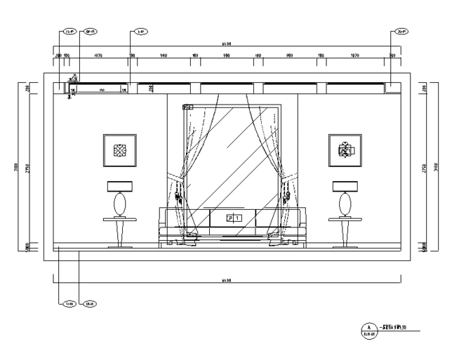
客厅立面方案2

客厅立面图

本组带来的是9款沙发立面图,不一样的客厅可以不同的沙发摆放,一起来

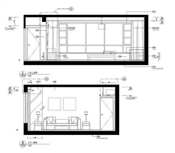
[广东]小巧简约两居室室内装修施工图客厅立面图

24款电视背景墙立面图

随机推荐

迪丽热巴 录制《快乐大本营》

p>《两杆大烟枪》是由 a href="#">盖伊·里奇 /a>自编自导, a href=

可爱简笔画附过程45

窦靖童周迅出席活动,窦靖童罕见打扮"正常",和周迅像同龄

尤长靖你怎么这么好看呢

白敬亭有一爱好就是收集鞋,曾被自家粉丝吐槽"以后就跟鞋过吧",可你

蓝天,白雪,土坯房子,偶尔传来一声鸡叫,北方农村别样的美

1993属鸡女2023年全年运势如何_十二生肖网