现代简约风格别墅室内装修全套施工图-住宅装修-筑龙室内设计论坛

相关图片

家装全套施工图|空间|家装设计|lucky朵_原创作品-站酷zcool

全套家装施工图绘图模板他来了#室内设计 #cad画图 #施工 - 抖音

时尚简约施工图室内设计(附效果图)

关键词: 样板间装修施工图样板房设计方案样板房效果

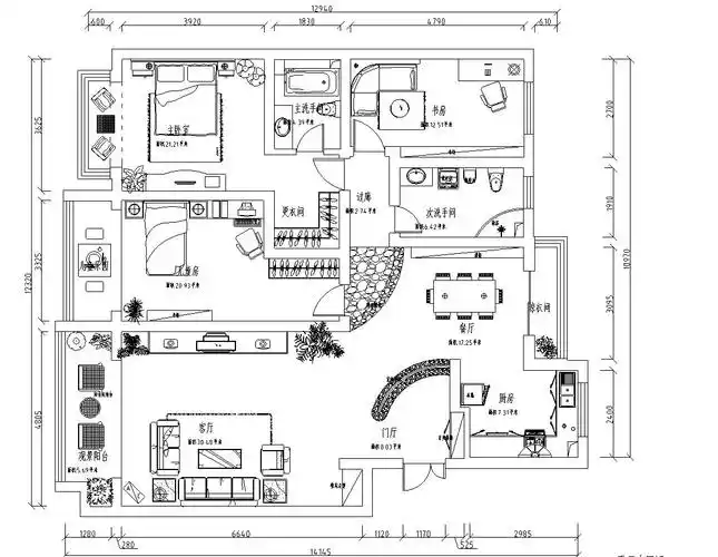
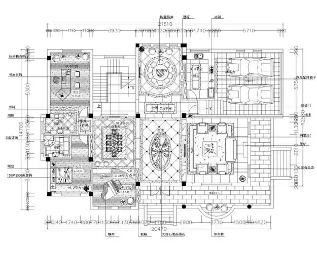
[福建]福州某别墅室内设计详细施工图

随机推荐

男生孤独霸气冷血图片头像高清冷血邪魅男生图片头像合集

我的英雄学院头像

蔡徐坤的腿毛王俊凯的腿毛千玺的腿毛都比不上他的腿毛

请问大家有没有山河令的高清壁纸可以分享一下吗

当高露和李沁同框我终于明白颜值在演技面前不值一提

大美人藤沐仁cut!【history4近距离爱上你】ep6 陈立安撒浪嘿鸭!

手绘教大家画卡通动漫人物

红肿等症状,同时眼睛异物感明显,要谨慎对待,这有可能是结膜溃疡症状