[北京]凯隆地产两套现代风格一居室样板房室内设计施工图

相关图片

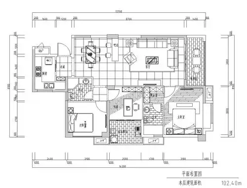
高层90户型施工图_施工图纸_室内设计联盟 - powered by discuz!

全套家装施工图绘图模板他来了#室内设计 #cad画图 #施工 - 抖音

中式风格全套施工图_施工图纸_室内设计联盟 - powered by discuz!

现代简约风格别墅室内装修全套施工图-住宅装修-筑龙室内设计论坛

[福建]福州某别墅室内设计详细施工图

随机推荐

#迪丽热巴花儿与少年##迪丽热巴邓妍#

倪妮金鹿奖最佳女演员

王子文61高清写真(明星爱豆壁纸)_网易订阅

日本治愈系美女新垣结衣森系小清新美图壁纸

原创《爱上特种兵》黄景瑜180斤胖得太明显,李沁英文台词不达标

斗罗大陆冻千秋白秀秀壁纸

玉环新城吾悦广场三房两厅两卫户型图

重启2020丨黑洞投资合伙人杨蓉:谈疫后投资机构的机遇与挑战