新农村二层实用小别墅施工图纸及效果图_两层自建房屋设计,鼎川建筑

相关图片

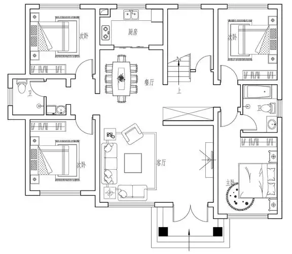
两层农村别墅最新平面设计图片

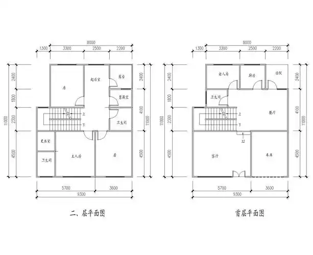
14x12二层别墅设计全套图纸

二层平面图

14x12二层别墅设计全套图纸

农村二层房屋设计图,以后家家户户都是这样的小洋楼,造价不高人 - 抖

随机推荐

《时尚芭莎》2023年开年刊封面人物倪妮,于一片热烈肆意的大红色中

古力娜扎#黑色蝴蝶结小香风珍珠裙,不一样的惊艳感_的设计_亮片_裙子

只有守住内心的淡定与宁静 慵懒的午后 长椅 摄影

品牌汽车标志图片汽车品牌广告标志商标汽车商标

20几岁的杨钰莹!网友不禁感叹:多少人曾爱慕你年轻时的容颜!

亮丽的山水花木美丽的风景桌面壁纸

语文大师逢入京使唐岑参

2019新款韩版圆领棉麻上衣女 麻料大码短款高腰宽松百搭亚麻t恤衫