原本鸡肋的玄关,活生生变出2面顶天立地鞋柜 1个储藏间,太变态了!

相关图片

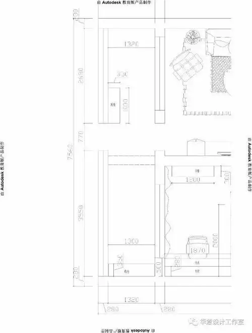
[北京]简欧大户型鞋柜详图

罗森朗鞋柜家用门口大容量免安装玄关柜高立式推拉门式阳台多层收纳鞋

9张玄关设计图示告诉你鞋柜挂衣柜尺寸到底多少合适

分享家居鞋柜详图资料下载

最全的入户玄关鞋柜设计攻略快收藏吧

随机推荐

华晨宇上海见面会壁纸送上笑起来好看的要命

王金色字体图片

男人长痣面相图

同陷未婚生子传闻范丞丞含糊其辞王一博果断辟谣

伸出的手图片 - 第3张

作品无人问津,演技被质疑:和渣男焉栩嘉恋爱后,张子枫被骂惨了|周迅

乐队的夏天第三季七强-安达组合#乐队的夏天第三季 @安达组合 - 抖音

谈心谈话记录内容有哪些?_酷知经验网