3, 在木龙骨基础上再进行木工板找平

相关图片

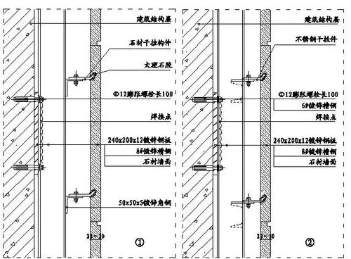
cad木饰面挂板节点大样图

木饰面吊顶天花节点图

现代木饰面吊顶天花节点图施工图下载【id:257308896】

精装修木工及涂饰工程工艺节点做法(图文并茂)

木饰面挂板墙面节点图施工图下载

随机推荐

热门高清电脑壁纸4k电脑壁纸第十四期唯美动漫壁纸

beyond四子帅气容颜

帅气高冷黑衣小哥哥|古风头像|男生头像

今春流行长风衣别再穿得土气显矮5种搭配轻松穿出高级感

永夜星河 虞书欣 发型

tyt台风少年团姚景元高清图片(三)

范冰冰和古力娜扎同框,娜扎更胜一筹,年轻就是好

碧海蓝天