庭院雨棚设计效果图雨棚哪种材质最好

相关图片

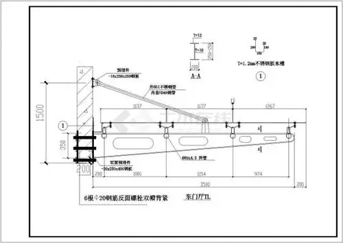
某大门雨棚设计cad施工详图

pc阳光板雨棚设计效果图

某钢结构雨棚结构设计施工图2010版

某车库玻璃雨棚cad结构设计图

某大门雨棚设计cad施工详图

随机推荐

千玺头像高清图片最新艺术照易烊千玺爆帅照片

食品发酵工艺实验室 food fermentation lab 北京工商大学食品学院

加拿大插画师bob夸张有趣的漫画形象

ins高清手机壁纸 风景手机壁纸 油画手机壁纸 冷淡风手机壁纸

n多寿司

水的三种形态之间的变化,其实是温度的变化

马天宇个人资料及简介(年龄,身高,身世,图片)

万鹏写真集